Urangan, Queensland

FULLY DA APPROVED SITE LOCATED AT HERVEY BAY AIRPORT - 31DS

DEVELOPMENT SITE $1.5M + GST

Business Description

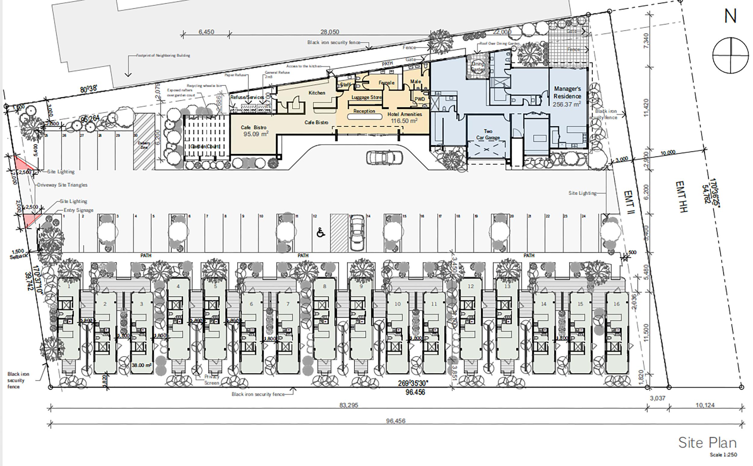
A rare opportunity for developers or commercial investors to secure a significant 4,502m² site in the thriving coastal hub of Urangan, Hervey Bay. Zoned MU2 - Mixed Use, and with an approved Development Application for a boutique hotel and hospitality precinct, this property offers immediate upside and long-term growth potential in one of Queensland’s most active regional markets.

- Development Approval: MCU22/0106 - Fully approved for mixed-use development.

- Site Area: 4,502 m2.

- Zoning: Mixed Use (MU2) – Hervey Bay Airport Business Park.

- Permitted Uses: 16-unit hotel (Alibaba Hotel Suites), Cafe/bistro, VIP function rooms.

- Approval Validity: 6 years (Approved 31/03/2023, Amended 23/01/2024).

- Site Readiness: Cleared, flat, and construction-ready (drawings to be finalised).

- Council Rates: $1,147.94 (for period 01/03/2025 to 30/06/2025).

This is a turnkey opportunity in a fast-growing lifestyle destination with strong demand across tourism, residential, and commercial sectors. Whether you proceed with the approved scheme or explore a new vision (STCA), 1 Southern Cross Circuit offers flexibility, scale, and strategic location in equal measure.

Contact Dale from Tourism Brokers for further information or to arrange an inspection.

Property ID: 31DS (quote when enquiring)

Property Code: 5228

Business Summary

Marketing Agent
Dale Shearer
Dale Shearer

Key Investment Insights

1. Fully approved Development Application MCU22/0106 for mixed-use development, providing immediate entitlement certainty.
2. 4,502 m2 cleared, flat site, construction-ready, drawings to be finalised.
3. Zoned MU2 Mixed Use within Hervey Bay Airport Business Park, enabling commercial and hospitality projects.
4. Approved scheme permits a 16-unit boutique hotel (Alibaba Hotel Suites), cafe/bistro, and VIP function rooms, offering multiple income streams.
5. Approval timeframe valid for six years, approved 31/03/2023 and amended 23/01/2024, providing medium-term development flexibility.
6. Positioned at 1 Southern Cross Circuit, Urangan, adjacent to Hervey Bay Airport, supporting airport-related demand and visitor access.
7. Identified as a turnkey opportunity for developers or commercial investors, enabling faster time-to-market.
8. Located in a fast-growing lifestyle destination with strong demand across tourism, residential, and commercial sectors, indicating long-term growth potential.
9. Option to proceed with the approved scheme or pursue alternative development subject to council approval, offering strategic flexibility.
10. Low council rates reported at $1,147.94 for the 01/03/2025 to 30/06/2025 period, contributing to holding cost transparency.
Listing location

Enquire Now

Thank you, your enquiry has been sent now.

Listing Tools

Management Rights

Receive new listing alerts

Sign up
Similar Motels For Sale

You may also like

Iconic Maryborough Hospitality Investment, Long Leases, Strong Returns, Expansion Potential
Off Market Group
Iconic Maryborough Hospitality Investment...

MARYBOROUGH

Net Income: -
Managers Estate: - - Bed - Bath
Letting Pool: -
Remuneration:

Opportunity in Maryborough, Dual-Lease Entertainment and Accommodation with Strong Income and Upside
Off Market Group
Opportunity in Maryborough, Dual-Lease...

MARYBOROUGH

$1,400,000

Net Income: -
Managers Estate: - - Bed - Bath
Letting Pool: -
Remuneration:

Own The Dream - Business Only Permanent Letting Opportunity Clifton Beach
Experience Timeless Country Hospitality
PERFORMING FREEHOLD MOTEL OFFERING WITH UPSIDE & LONG-TERM CAPITAL GROWTH - 1258MF
Caloundra’s ultimate profitable Management Rights Business opportunity Awaits
Business Only Permanent Business in West End
ROCK-SOLID TOURIST PARK OF SCALE AND QUALITY IN THE HEART OF THE ALICE! | Resort Brokers ID : FH009008
RARE LEASEHOLD HOTEL/MOTEL OPPORTUNITY - 2892ML
Lease Opportunity in Paradise
Business-Only Management Rights for Sale Melbourne
Well-Established Tourist Van Park in the Heart of Charters Towers
The Linville - a Food Power House
Rare Caretaking-Only Business – Secure Income, Coastal Cotton Tree | Resort Brokers ID : MRC009020
Dual-Complex Cotton Tree Business-Only Opportunity, High-Return and Hassle-Free | Resort Brokers ID : MRB009021
Regional Freehold Motel with plenty of upside potential at an accessible price | Resort Brokers ID : FH009053
PERMANENT MLR DUO - OPERATIONAL FLEXIBILITY AND LIFESTYLE BALANCE | Resort Brokers ID : MR009058
Prime freehold motel with direct beach access in Warrnambool | Resort Brokers ID : FH008960
Rare Business-Only Opportunity in Sought-After Cotton Tree | Resort Brokers ID : MRB009022
OFF THE PLAN BUSINESS-ONLY IN BOKARINA - THE LAST RESI DEVELOPMENT IN OCEANSIDE | Resort Brokers ID : OTP009059