Hobart, Tasmania

"Cedar Cottages" - Peaceful, coastal retreat in popular Blackmans Bay

Business Description

Elders Commercial is pleased to present to market "Cedar Cottages", self contained cottages, in a tranquil location just minutes from Blackmans Bay Beach.

A highly successful business run under management since 2005. All cottages are in excellent condition, with modern facilities, on-site parking with a total sleeping capacity of 37.

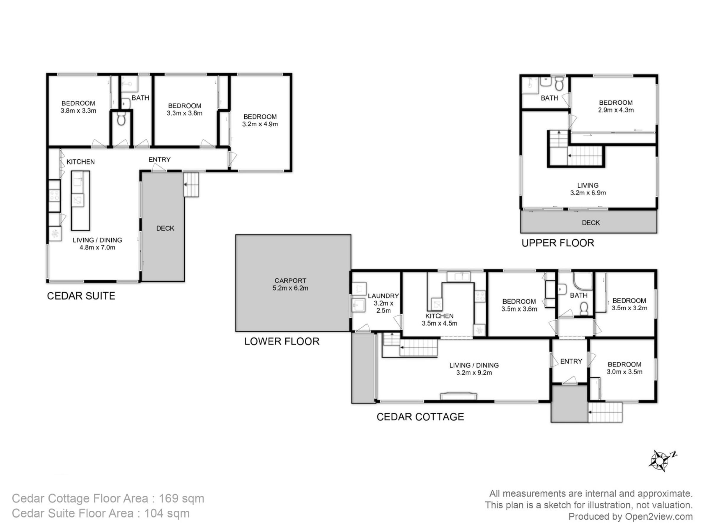
The properties include 3 cottages on 1 Title (1,009 sqm*) at 245 Roslyn Avenue together with 2 cottages on 1 Title (718 sqm*) at 14 Garnett Street, to be sold together or in one line.

Alternatively, the cottages could be bought for residential use with strata title possibilities^.

Cedar Cottages is offered for sale by Expression of interest closing Thursday 23rd April, 2026 at 4pm (AEST).

*Approximate
^STCA

Business Summary

Marketing Agent
Mathew Chugg
Mathew Chugg

Key Investment Insights

1. Established holiday accommodation business operated under management since 2005, indicating stable operations and track record.
2. Self-contained cottages with modern facilities, all reported in excellent condition, reducing immediate capital expenditure risk.
3. Total sleeping capacity of 37, supporting medium-scale group and family bookings.
4. On-site parking across the properties, enhancing guest convenience and occupancy appeal.
5. Prime coastal location, minutes from Blackmans Bay Beach, supporting strong tourism and weekend demand.
6. Portfolio structure: three cottages on one title (approx. 1,009 sqm) at 245 Roslyn Avenue, plus two cottages on one title (approx. 718 sqm) at 14 Garnett Street, offering operational flexibility.
7. Option to purchase properties together or in one line, enabling buyer flexibility for scaling or staged acquisition.
8. Alternate use potential for residential redevelopment, with strata titling possibilities subject to council approval (STCA), adding asset value upside.
9. Sale marketed by Elders Commercial via Expression of Interest, closing Thursday 23 April 2026 at 4pm AEST, providing a defined transaction timetable.
10. Longstanding management model suggests potential for continued hands-off ownership or transition to owner-operator if desired.
Listing location

Enquire Now

Thank you, your enquiry has been sent now.

Listing Tools

Management Rights

Receive new listing alerts

Sign up
Similar Bed & Breakfasts For Sale

You may also like

Exclusive - Business Only - No Real Estate Required - Woollongabba - ID 9219
Exclusive - Brisbane East - Business Only - Super Simple Income - ID 9223
Blue Chip, High Net, Beachside Main Beach | Resort Brokers ID : MR009164
Iconic Brisbane CBD Permanent MLR - minimal workload & strong conversion upside | Resort Brokers ID : MR009157
Management Rights Opportunity - Lifestyle & Income in Port Douglas - ID 8502
AN ABSOLUTE RIPPER LEASEHOLD MOTEL - 2682ML
Southport with NET $428,657 - ID 9114
Strong Returns. Prime Location. Proven Performer. | Resort Brokers ID : FH009110
Dual Waterfront Off-The-Plan Business Only - Projected Net Profit $620k+ | Resort Brokers ID : OTP009138
High-performing coastal asset | ~$940K net profit | Prime beachside location | Resort Brokers ID : MR009160
PRIME SOUTHERN GC BEACHSIDE RESORT – LUXURY LIVING+ GREAT ROI | Resort Brokers ID : MR009141
Premier Brisbane Riverfront Business-Only MLR - No real estate! No living onsite | Resort Brokers ID : MRB009149
Business Only, Large Income, Huge Remuneration, Permanent GEM in Southside Brisbane
Exceptional Management Rights Opportunity,Fantastic Location
High Yield Management Rights 26% Return, Accommodation Module, Coastal Lifestyle
PERFECTLY LOCATED BEACHSIDE RESORT DELIVERING EXCEPTIONAL RETURNS | Resort Brokers ID : MR009153
New Noosa Management Rights Opportunity - Prime Location
Complex Management / Caretaking Opportunity - The Fairways